Cách chọn vị trí đặt thang máy trong nhà ống phù hợp diện tích và kết cấu
Trong bối cảnh nhà ống, nhà phố ngày càng phát triển theo chiều cao, việc lắp đặt thnag máy đóng vai trò quan trọng trong tổng thể thiết kế công trình. Không chỉ đơn thuần là bổ sung thêm một thiết bị di chuyển, thang máy còn tác động trực tiếp đến bố cục mặt bằng, khả năng khai thác ánh sáng, thông gió và hiệu quả sử dụng diện tích. Chính vì vậy, vị trí đặt thang máy trong nhà ống luôn là nội dung được nhiều gia chủ, kiến trúc sư và nhà thầu quan tâm ngay từ giai đoạn lên phương án thiết kế. Một lựa chọn vị trí phù hợp sẽ giúp không gian trở nên gọn gàng, thuận tiện cho sinh hoạt và đáp ứng yêu cầu kỹ thuật lâu dài. Ngược lại, nếu bố trí thiếu tính toán, thang máy có thể gây hạn chế công năng và phát sinh điều chỉnh tốn kém về sau.
I. Các yếu tố cần cân nhắc khi lựa chọn vị trí đặt thang máy trong nhà ống

Nhà ống có đặc trưng chiều ngang hẹp, chiều sâu dài và thường xây cao tầng. Vì vậy, việc lựa chọn vị trí đặt thang máy không chỉ liên quan đến thẩm mỹ mà còn ảnh hưởng trực tiếp đến công năng sử dụng, giao thông đứng, ánh sáng và kết cấu công trình. Trước khi quyết định phương án bố trí, gia chủ cần đánh giá kỹ các yếu tố nền tảng dưới đây để tránh phát sinh chỉnh sửa về sau.
Diện tích và bề rộng mặt tiền
Diện tích xây dựng và bề rộng mặt tiền là yếu tố đầu tiên chi phối vị trí đặt thang máy trong nhà ống. Với những căn nhà có mặt tiền hẹp từ 3-4 m, việc bố trí thang máy cần ưu tiên giải pháp gọn, tập trung vào lõi giao thông để hạn chế chiếm diện tích sinh hoạt. Trong trường hợp này, đặt thang máy gần hoặc kết hợp với thang bộ thường mang lại hiệu quả cao hơn so với bố trí độc lập. Ngược lại, nhà ống có mặt tiền từ 5 m trở lên hoặc chiều sâu lớn cho phép linh hoạt hơn trong việc đặt thang máy lệch trục, tạo sự tách biệt giữa không gian giao thông và khu vực sinh hoạt. Việc xác định đúng quy mô mặt bằng giúp lựa chọn vị trí thang máy hợp lý, tránh làm không gian bị chia cắt hoặc mất cân đối.
Số tầng và tần suất sử dụng thang máy
Số tầng và tần suất sử dụng quyết định trực tiếp đến vai trò của thang máy trong nhà ống. Với nhà từ 3 tầng trở lên, thang máy không còn là tiện ích bổ sung mà trở thành phương tiện di chuyển chính, đặc biệt với gia đình có người lớn tuổi hoặc trẻ nhỏ. Khi tần suất sử dụng cao, vị trí thang máy cần đặt ở khu vực trung tâm, dễ tiếp cận từ các không gian chung để giảm quãng đường di chuyển. Ngược lại, với nhà 2-3 tầng sử dụng thang máy không thường xuyên, có thể bố trí thang ở vị trí phụ, ưu tiên thang bộ là trục giao thông chính. Đánh giá đúng nhu cầu sử dụng giúp tránh lãng phí diện tích và tối ưu hiệu quả vận hành.
Khả năng lấy sáng, thông gió tự nhiên
Nhà ống thường hạn chế về ánh sáng và thông gió, do đó vị trí đặt thang máy cần tính đến khả năng lấy sáng tự nhiên cho toàn bộ công trình. Nếu đặt thang máy tại khu vực giữa nhà mà không có giải pháp giếng trời hoặc thang kính, không gian xung quanh dễ bị tối và bí. Ngược lại, bố trí thang máy kết hợp giếng trời hoặc sử dụng thang máy kính có thể tận dụng ánh sáng và hỗ trợ thông gió theo trục đứng. Việc cân nhắc yếu tố này ngay từ đầu giúp thang máy không trở thành “khối đặc” cản sáng, đồng thời cải thiện chất lượng không gian sống trong nhà ống.
Điều kiện kết cấu và hiện trạng công trình (xây mới - cải tạo)
Điều kiện kết cấu là yếu tố mang tính quyết định, đặc biệt với nhà cải tạo. Đối với nhà xây mới, vị trí đặt thang máy có thể được tính toán đồng bộ từ móng, dầm, cột, giúp tối ưu diện tích và giảm chi phí phát sinh. Trong khi đó, với nhà đang sử dụng hoặc cải tạo, việc đặt thang máy bị giới hạn bởi kết cấu hiện hữu, khả năng mở sàn và chịu lực của công trình. Khi đó, các giải pháp như thang máy khung thép, thang mini hoặc bố trí sát tường, giếng trời sẽ phù hợp hơn. Việc đánh giá chính xác hiện trạng giúp lựa chọn vị trí thang máy khả thi, an toàn và hiệu quả lâu dài.
II. Cách chọn vị trí đặt thang máy trong nhà ống phù hợp diện tích và kết cấu

Sau khi xác định các yếu tố nền tảng, bước tiếp theo là lựa chọn phương án bố trí cụ thể. Trong nhà ống, ba cách đặt thang máy phổ biến nhất hiện nay là: đặt trong lòng thang bộ, đặt bên cạnh thang bộ và đặt đối diện thang bộ. Mỗi phương án đều có đặc điểm riêng, phù hợp với từng loại mặt bằng và nhu cầu sử dụng khác nhau.
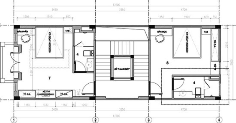
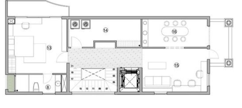
Vị trí đặt thang máy trong nhà ống - Thang máy đặt trong lòng thang bộ
Đặt thang máy trong lòng thang bộ là giải pháp được áp dụng nhiều cho nhà ống có diện tích hạn chế. Thang máy nằm ở trung tâm lõi giao thông, bao quanh là các vế thang bộ, giúp tiết kiệm diện tích và rút ngắn quãng đường di chuyển giữa các tầng. Phương án này đặc biệt phù hợp với nhà xây mới, khi có thể thiết kế đồng bộ kích thước hố thang, thang bộ và giếng trời ngay từ đầu. Ngoài ra, việc đặt thang máy trong lòng thang bộ giúp công trình gọn gàng, dễ quản lý giao thông đứng và thuận tiện sử dụng. Tuy nhiên, giải pháp này đòi hỏi tính toán kỹ về kích thước tối thiểu, chiều cao OH và khả năng lấy sáng để tránh cảm giác chật và tối ở khu vực thang.
Thang máy đặt bên cạnh thang bộ
Phương án đặt thang máy bên cạnh thang bộ mang lại sự linh hoạt cao hơn trong thiết kế và sử dụng. Thang bộ và thang máy được bố trí song song, tạo thành một trục giao thông rõ ràng, dễ phân luồng di chuyển. Cách bố trí này phù hợp với nhà ống có chiều ngang trung bình hoặc chiều sâu lớn, cho phép sắp xếp không gian hợp lý mà không ảnh hưởng nhiều đến khu vực sinh hoạt. Ưu điểm của phương án này là dễ thi công, thuận tiện bảo trì và có thể áp dụng cho cả nhà xây mới lẫn cải tạo. Tuy nhiên, cần tính toán kỹ khoảng cách giữa hai hệ thống để đảm bảo an toàn, đồng thời không làm mất cân đối mặt bằng tầng.
Thang máy đặt đối diện thang bộ
Đặt thang máy đối diện thang bộ thường được áp dụng cho nhà ống có diện tích lớn hoặc thiết kế theo hướng hiện đại. Hai trục giao thông đứng được tách biệt, tạo cảm giác rõ ràng và thuận tiện cho người sử dụng. Phương án này giúp thang máy trở thành điểm nhấn kiến trúc, dễ kết hợp với sảnh thang, giếng trời hoặc không gian đệm. Tuy nhiên, nhược điểm là chiếm nhiều diện tích hơn so với hai phương án còn lại và yêu cầu mặt bằng đủ rộng để bố trí hợp lý. Do đó, giải pháp này phù hợp với nhà ống cao cấp, nhà kết hợp ở và kinh doanh hoặc công trình ưu tiên trải nghiệm sử dụng.
Trong quá trình tìm hiểu vị trí đặt thang máy trong nhà ống, nhiều gia chủ cũng đặc biệt quan tâm đến giải pháp thang máy phù hợp với diện tích hạn chế. Đây là lúc những dòng thang máy mini phát huy rõ lợi thế về kích thước, khả năng linh hoạt và tính ứng dụng cao. Để có góc nhìn đầy đủ hơn, bạn có thể tham khảo thêm bài viết “Thang máy mini - Giải pháp tối ưu cho không gian sống nhỏ gọn”, nơi phân tích chi tiết vì sao thang máy mini đang trở thành lựa chọn phổ biến cho nhà ống, nhà phố hiện đại, đặc biệt trong các phương án bố trí thang máy cần tiết kiệm diện tích nhưng vẫn đảm bảo tiện nghi và an toàn sử dụng lâu dài.
III. Nên lắp đặt thang máy cho nhà ống bao nhiêu tầng là hợp lý?

Việc lắp đặt thang máy trong nhà ống không phụ thuộc hoàn toàn vào số tầng, mà cần được cân nhắc đồng thời với nhu cầu sử dụng, đối tượng sinh hoạt và đặc điểm công trình. Tuy nhiên, theo thực tế thiết kế và vận hành, nhà ống từ 3 tầng trở lên đã bắt đầu phù hợp để xem xét lắp thang máy.
Với nhà ống 3 tầng, thang máy giúp giảm tải cho thang bộ, hỗ trợ di chuyển khi mang đồ nặng hoặc có người lớn tuổi, trẻ nhỏ. Dù tần suất sử dụng chưa quá cao, nhưng việc lắp sẵn thang máy ngay từ giai đoạn xây dựng sẽ thuận lợi và tiết kiệm hơn so với cải tạo sau này.
Nhà ống 4-5 tầng là nhóm công trình phổ biến nhất cần thang máy. Khi số tầng tăng, việc di chuyển bằng thang bộ trở nên bất tiện, đặc biệt với sinh hoạt hằng ngày. Ở mức này, thang máy gần như trở thành phương tiện di chuyển chính, giúp tiết kiệm thời gian và nâng cao chất lượng sống.
Đối với nhà ống từ 6 tầng trở lên, thang máy là hạng mục gần như bắt buộc. Không chỉ phục vụ sinh hoạt gia đình, thang máy còn đảm bảo an toàn, thuận tiện khi có khách, người cao tuổi hoặc sử dụng kết hợp ở - kinh doanh. Việc không lắp thang máy trong nhà cao tầng dễ gây mệt mỏi, giảm giá trị sử dụng và tính thanh khoản của công trình.
Tóm lại, nhà ống từ 3 tầng có thể lắp, từ 4 tầng nên lắp, và từ 5 tầng trở lên cần lắp thang máy để đảm bảo tiện nghi và hiệu quả lâu dài.
IV. Lời khuyên lựa chọn vị trí đặt thang máy trong nhà ống theo từng loại công trình

Mỗi loại công trình nhà ống có đặc điểm sử dụng và điều kiện kỹ thuật khác nhau. Vì vậy, việc lựa chọn vị trí đặt thang máy cần được điều chỉnh linh hoạt để vừa phù hợp thực tế, vừa đảm bảo an toàn và hiệu quả sử dụng lâu dài.
Nhà xây mới
Với nhà ống xây mới, lợi thế lớn nhất là có thể tính toán vị trí thang máy ngay từ giai đoạn thiết kế. Lời khuyên là nên đặt thang máy tại lõi giao thông trung tâm, kết hợp với thang bộ và giếng trời để tối ưu diện tích, ánh sáng và luồng di chuyển. Việc bố trí đồng bộ từ móng, kết cấu đến kích thước hố thang giúp giảm chi phí phát sinh, đồng thời đảm bảo thang máy vận hành ổn định, đúng tiêu chuẩn kỹ thuật. Nhà xây mới cũng dễ dàng lựa chọn các phương án như thang máy trong lòng thang bộ hoặc thang máy bên cạnh thang bộ để không làm ảnh hưởng đến không gian sinh hoạt.
Nhà cải tạo, nâng tầng
Đối với nhà ống cải tạo hoặc nâng tầng, vị trí đặt thang máy cần ưu tiên tính khả thi và an toàn kết cấu. Do bị giới hạn bởi móng, dầm, cột hiện hữu, thang máy thường được bố trí ở khu vực giếng trời, cuối nhà hoặc sát tường chịu lực. Trong trường hợp không thể xây hố thang bê tông, giải pháp thang máy khung thép hoặc thang máy mini là lựa chọn phù hợp. Lời khuyên quan trọng là không nên chạy theo vị trí “đẹp” về hình thức mà bỏ qua yếu tố chịu lực và khả năng thi công thực tế, vì điều này có thể gây rủi ro lâu dài.
Nhà có người cao tuổi hoặc trẻ nhỏ
Với nhà ống có người cao tuổi hoặc trẻ nhỏ, vị trí đặt thang máy cần ưu tiên dễ tiếp cận và an toàn sử dụng. Thang máy nên đặt gần khu vực sinh hoạt chung, hạn chế bậc cấp, tránh phải đi qua không gian hẹp hoặc khu vực trơn trượt. Ngoài ra, việc bố trí thang máy gần thang bộ giúp hỗ trợ di chuyển linh hoạt trong trường hợp mất điện hoặc bảo trì. Các yếu tố như cửa thang rộng, cabin đủ thoáng và chiếu sáng tốt cũng cần được tính đến ngay từ khâu chọn vị trí.
V. HNEE - Đơn vị tư vấn vị trí đặt thang máy trong nhà ống an toàn và hiệu quả
Trong nhà ống, việc đặt thang máy đúng vị trí không chỉ là bài toán kỹ thuật mà còn liên quan đến công năng sử dụng và giá trị lâu dài của công trình. HNEE là đơn vị chuyên tư vấn, thiết kế và lắp đặt thang máy gia đình, trong đó đặc biệt chú trọng đến giải pháp bố trí thang máy phù hợp từng loại nhà ống.
HNEE không áp dụng một phương án chung cho mọi công trình. Trước khi đề xuất vị trí đặt thang máy, đội ngũ kỹ thuật của HNEE tiến hành khảo sát thực tế, đánh giá mặt bằng, kết cấu, số tầng, nhu cầu sử dụng và đối tượng sinh hoạt trong gia đình. Từ đó, HNEE đưa ra phương án bố trí tối ưu, đảm bảo vừa tiết kiệm diện tích, vừa thuận tiện di chuyển và an toàn khi vận hành.
Đối với nhà xây mới, HNEE phối hợp cùng kiến trúc sư ngay từ giai đoạn thiết kế để tích hợp thang máy vào tổng thể công trình, hạn chế tối đa việc điều chỉnh về sau. Với nhà cải tạo, HNEE ưu tiên các giải pháp thang máy phù hợp hiện trạng, đảm bảo không ảnh hưởng đến kết cấu và sinh hoạt hiện hữu.
Bên cạnh tư vấn vị trí, HNEE còn thực hiện đầy đủ quy trình kỹ thuật từ thiết kế hố thang, kiểm tra an toàn, lắp đặt, thử tải đến bảo trì định kỳ. Mọi giải pháp đều đặt yếu tố an toàn và hiệu quả sử dụng lâu dài lên hàng đầu.
Lựa chọn HNEE, khách hàng không chỉ nhận được một chiếc thang máy phù hợp, mà còn là giải pháp bố trí thang máy trong nhà ống hợp lý, bền vững và đúng nhu cầu sử dụng thực tế.
Xu hướng bố trí thang máy trong nhà ống đô thị hiện nay
Tại các đô thị lớn như Hà Nội, TP.HCM và các thành phố vệ tinh, mô hình nhà ống cao tầng đang trở thành xu hướng chủ đạo do quỹ đất hạn chế. Thực tế này khiến vị trí đặt thang máy trong nhà ống không còn là lựa chọn mang tính tùy nghi, mà đã trở thành một hạng mục cần được nghiên cứu nghiêm túc ngay từ giai đoạn thiết kế sơ bộ. Các khảo sát thực tế cho thấy, xu hướng hiện nay là ưu tiên bố trí thang máy tại lõi giao thông trung tâm, kết hợp thang bộ và giếng trời để tối ưu diện tích, ánh sáng và luồng di chuyển theo phương đứng.
Bên cạnh đó, các dòng thang máy mini, thang máy khung thép đang được ứng dụng ngày càng nhiều cho nhà ống cải tạo hoặc mặt tiền hẹp, nhờ khả năng linh hoạt về vị trí lắp đặt và giảm tác động đến kết cấu hiện hữu. Việc lựa chọn vị trí thang máy không chỉ dựa trên mặt bằng tầng trệt, mà cần xét đồng bộ toàn bộ công trình, từ móng, chiều cao tầng, thói quen sử dụng đến kế hoạch sinh hoạt lâu dài của gia đình. Đây cũng là lý do các giải pháp bố trí thang máy hiện nay thường gắn liền với tư vấn kỹ thuật chuyên sâu, thay vì chỉ dựa trên yếu tố thẩm mỹ hoặc cảm quan không gian.
Thông tin liên hệ HNEE:
-
Hotline: 0935079666
-
Tel CN Hà Nội: 024 39 138 999
-
Tel CN HCM: 028 38 828 838
-
Email: hanoielevator@hnee.com.vn
-
Website: https://hnee.com.vn
Lời kết
Có thể thấy, việc xác định đúng vị trí đặt thang máy trong nhà ống không chỉ là bài toán về diện tích mà còn liên quan chặt chẽ đến kết cấu, thói quen sử dụng và định hướng lâu dài của công trình. Mỗi phương án bố trí đều có ưu và nhược điểm riêng, đòi hỏi sự đánh giá kỹ lưỡng dựa trên hiện trạng nhà ở, số tầng và nhu cầu thực tế của gia đình. Để đảm bảo thang máy vận hành an toàn, hài hòa với kiến trúc và tối ưu chi phí đầu tư, vai trò của đơn vị tư vấn chuyên môn là yếu tố không thể thiếu. Với kinh nghiệm thực tế trong nhiều dự án nhà ống và nhà phố, HNEE mang đến giải pháp tư vấn vị trí đặt thang máy phù hợp từng công trình, đồng thời đảm bảo tiêu chuẩn kỹ thuật, an toàn và giá trị sử dụng bền vững cho gia chủ.
Những câu hỏi liên quan: Vị trí đặt thang máy trong nhà ống
1. Vị trí đặt thang máy trong nhà ống có ảnh hưởng đến chi phí xây dựng không?
Có. Vị trí thang máy ảnh hưởng trực tiếp đến chi phí xây dựng hố thang, kết cấu móng, dầm sàn và phương án thi công. Nếu bố trí thang máy ngay từ giai đoạn thiết kế nhà ống, chi phí thường tối ưu hơn. Ngược lại, đặt thang máy ở vị trí khó thi công hoặc cải tạo sau sẽ phát sinh chi phí đáng kể.
2. Nhà ống mặt tiền hẹp có bắt buộc phải đặt thang máy gần thang bộ không?
Không bắt buộc, nhưng đây là phương án được ưu tiên trong đa số trường hợp. Với nhà ống mặt tiền hẹp, việc đặt thang máy gần hoặc trong lòng thang bộ giúp tập trung lõi giao thông, tiết kiệm diện tích và hạn chế chia cắt không gian. Các phương án khác chỉ phù hợp khi mặt bằng cho phép và được tính toán kỹ.
3. Có nên đặt thang máy ở cuối nhà ống không?
Đặt thang máy ở cuối nhà ống có thể phù hợp với nhà cải tạo hoặc nhà có chiều sâu lớn. Tuy nhiên, cần cân nhắc khả năng lấy sáng, thông gió và quãng đường di chuyển. Nếu không có giải pháp bổ trợ như giếng trời hoặc chiếu sáng nhân tạo hợp lý, vị trí cuối nhà có thể gây bất tiện khi sử dụng lâu dài.
4. Vị trí thang máy trong nhà ống có ảnh hưởng đến phong thủy không?
Theo quan điểm phổ biến, vị trí thang máy nên đặt ở khu vực giao thông chung, tránh đối diện trực tiếp cửa chính hoặc phòng ngủ. Tuy nhiên, yếu tố kỹ thuật, an toàn và công năng vẫn cần được ưu tiên hàng đầu. Việc kết hợp hài hòa giữa phong thủy và giải pháp kỹ thuật sẽ mang lại hiệu quả sử dụng lâu dài cho nhà ống.
5. Khi nào cần tư vấn chuyên gia để xác định vị trí thang máy trong nhà ống?
Gia chủ nên tìm đến đơn vị tư vấn chuyên môn khi nhà ống có mặt tiền hẹp, cải tạo nâng tầng, kết cấu phức tạp hoặc nhu cầu sử dụng thang máy cao. Chuyên gia sẽ đánh giá tổng thể mặt bằng, kết cấu và thói quen sinh hoạt để đề xuất vị trí thang máy an toàn, khả thi và tối ưu chi phí.
Bài viết liên quan
- Quy trình lắp đặt thang máy gia đình từ A đến Z - Các bước thi công chuẩn kỹ thuật và lưu ý quan trọng (29/5/2026)
- Cách tính công suất thang máy gia đình chuẩn kỹ thuật, tối ưu điện năng sử dụng (29/5/2026)
- Thông số kỹ thuật thang máy 1000kg chi tiết và những yếu tố cần biết khi lựa chọn (29/5/2026)
- Chiều cao phòng máy thang máy cần bao nhiêu? Tiêu chuẩn và lưu ý khi thiết kế (29/5/2026)
- Tải trọng thang máy ảnh hưởng gì đến thiết kế? Yếu tố cốt lõi quyết định an toàn và hiệu suất (29/5/2026)
- Thang máy không hố pit hoạt động như thế nào? Giải pháp tối ưu cho nhà phố hiện đại (29/5/2026)
- Diện tích tối thiểu để lắp thang máy gia đình - Cách tính chuẩn và lựa chọn phù hợp (29/5/2026)
- Kích thước thang máy gia đình 300kg 350kg 450kg - Thông số chuẩn và cách chọn phù hợp (29/5/2026)
- Chi phí phát sinh khi lắp thang máy cần biết để tránh đội ngân sách năm 2026 (29/5/2026)
- Chi phí bảo trì thang máy 1 năm bao nhiêu? Cách tối ưu ngân sách hiệu quả (12/5/2026)



















